Property Details
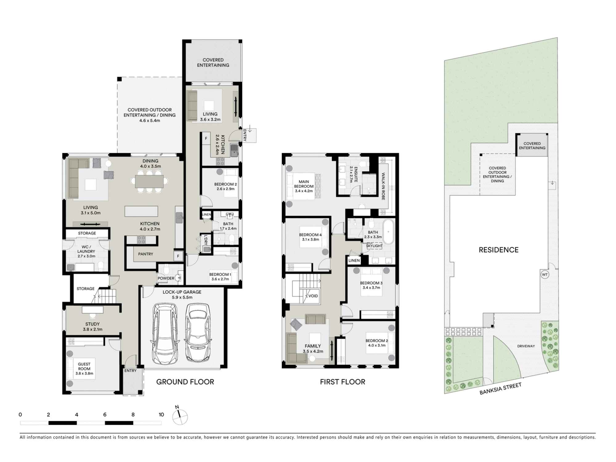
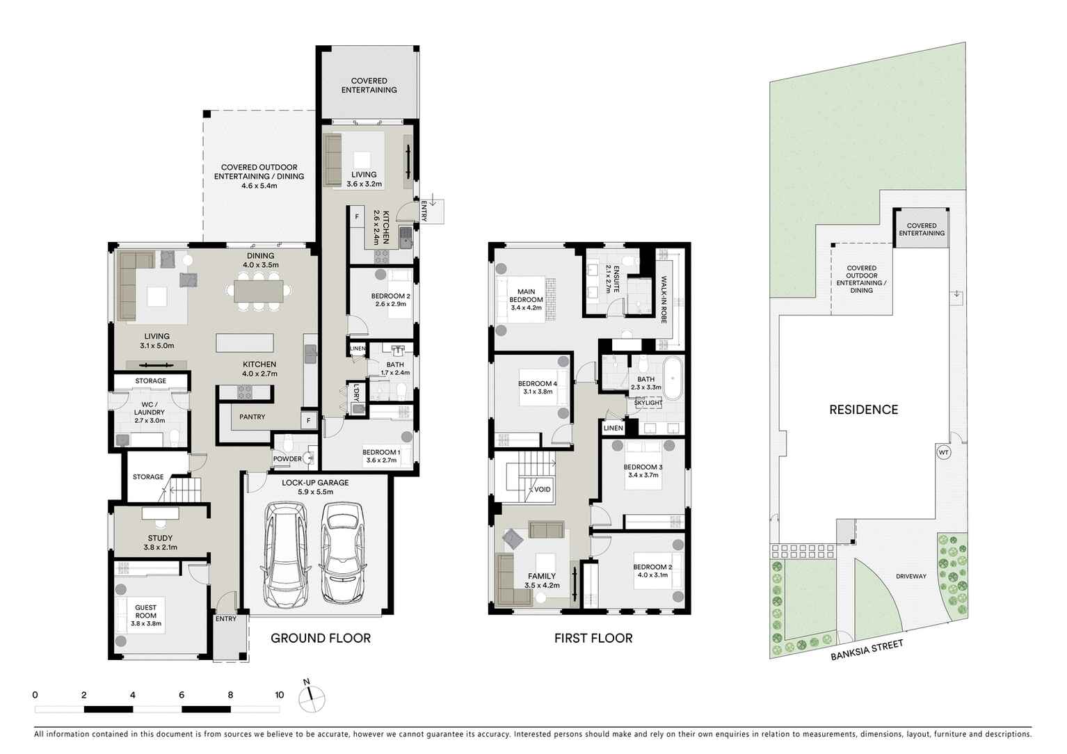
Situated in a quiet, convenient location, lies this impeccably presented home boasting five generously sized bedrooms and a thoughtfully designed, fully independent and separate two-bedroom apartment both with spacious backyard areas, providing versatility for extended family.
Designed for easy everyday life, the property offers excellent proximity to shops, schools and transport.
This home features:
- Expansive living/dining area opens to generous covered patio
- Versatile upstairs sitting room/teenage retreat, study space
- Gourmet stone island kitchen with Smeg appliances and pantry
- Five large bedrooms with built-in wardrobes and ceiling fans
- Main bedroom boasts ensuite, walk-in robe and dressing room
- Family bathroom with freestanding tub, well designed laundry
- Double lock-up garage plus off street parking, level lawns
- Ducted air conditioning, rainwater tanks, intercom entrance
- Granny Flat / Second residence has two bedrooms, kitchen, bathroom, laundry
Close Proximity to Golf Courses, Parks, shops (incl Westfield Eastgardens), transport and schools.
Would you like to attend our inspection?
If this property is of interest, please click the BOOK INSPECTION button.
*If there are no inspection times available, please enter your details & we will advise you as soon as there is a time.
*Please ensure you are registered to be notified of any changes & cancellation notices.
Disclaimer: We have used our best endeavours to ensure that all information contained within is true & accurate. We accept no responsibility of any inaccuracies. Prospective tenants are responsible to conduct their own due diligence.




















